HEMING ROAD, EDGWARE, HA8

Offers in excess of £600,000 | Available

3 bedroom Property For Sale

or call 020 8346 2208

Material Information


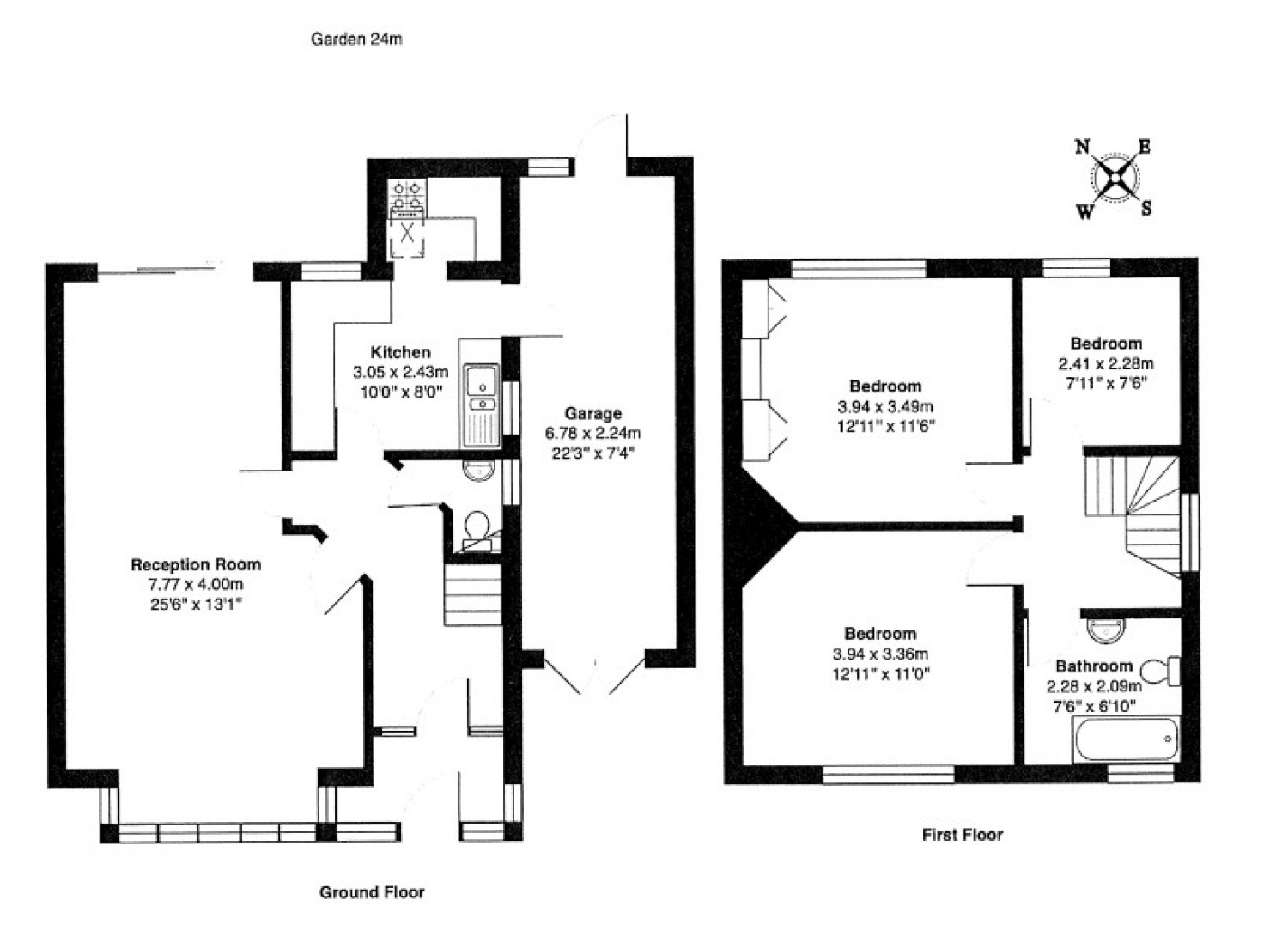
Property Description

Three bedroom semi-detached house located close to schools, shops, buses & within half a mile of Edgware underground station. The property offers scope for extension, to side, rear & loft conversion, subject to usual consents. * THREE BEDROOMS * THROUGH RECEPTION ROOM * KITCHEN * DOWNSTAIRS WC * GARAGE, APPROACHED BY OWN DRIVE * OFF-STREET CAR PARKING * GAS CENTRAL HEATING * DOUBLE GLAZING * BATHROOM / WC * LARGE REAR GARDEN * CHAIN FREE ACCOMMODATION COMPRISES: Enclosed entrance porch. Door to: ENTRANCE HALL DOWNSTAIRS WC Low level wc, wash basin. THROUGH RECEPTION ROOM 25’6 x 13’1 (7.77m x 4m). Max. Square bay window to front. Sliding doors to garden, wood flooring. KITCHEN 10’ x 8’ (3.05m x 2.43m). Fitted base & wall units. Worktops & sink. Plumbed in dishwasher. Windows to side & rear. Opening to rear addition with gas cooker & worktops. Roof light. STAIRS & LANDING Window to side. Access hatch to loft – scope for loft conversion. BEDROOM ONE 12’11 x 11’ (3.94m x 3.36m). Window to front. BEDROOM TWO 12’11 x 11’6 (3.94m x 3.49m). Window to rear BEDROOM THREE 7’11 x 7’6 (2.41m x 2.28m). Window to rear. BATHROOM / WC 7’6 x 6’10 (2.28m x 2.09m). White suite of panelled bath, wash basin, low level wc. Window to front. EXTERIOR REAR GARDEN Approximately 78’ x 28’ (24m x 8.5m). Patio, lawn & beds. Large shed. GARAGE Approx 22’ x 7’4 (6.78m x 2.24m). Attached at side. Double doors to front & pedestrian door to rear. Gas boiler. Plumbed in washing machine. Approached by own drive. OFF STREET PARKING Front garden block paved. Drive to garage & adjacent space for off street car parking. EPC Band D. COUNCIL TAX Band E, Barnet. The agent has not tested any apparatus, equipment, fixtures, fittings or services, and so cannot verify they are in working order, or fit for their purpose, nor has the agent checked the legal documentation to verify the tenure of the property. The buyer is advised to obtain verification from their solicitor or surveyor. Photographs are for illustration only and may depict items which are not for sale or included in the sale of the property. All measurements quoted are approximate and their accuracy should not be relied upon. A prospective purchaser must check the availability of any property and make an appointment to view before embarking on any journey.


Standout Features


Mortgage calculator

Mortgage calculator


Calculate Your Stamp Duty
£
Results
Stamp Duty To Pay:
Effective Rate:
Tax Band % Taxable Sum Tax

HEMING ROAD, EDGWARE, HA8

Ready to Sell or Let your property?

Are you ready to sell or let your property? We understand that putting your property on the market can be a big decision. That’s why we’re here to help you every step of the way.