ROSEMARY AVENUE, FINCHLEY, N3

£750,000 | Available

3 bedroom Property For Sale

or call 020 8346 2208

Material Information


Property Description

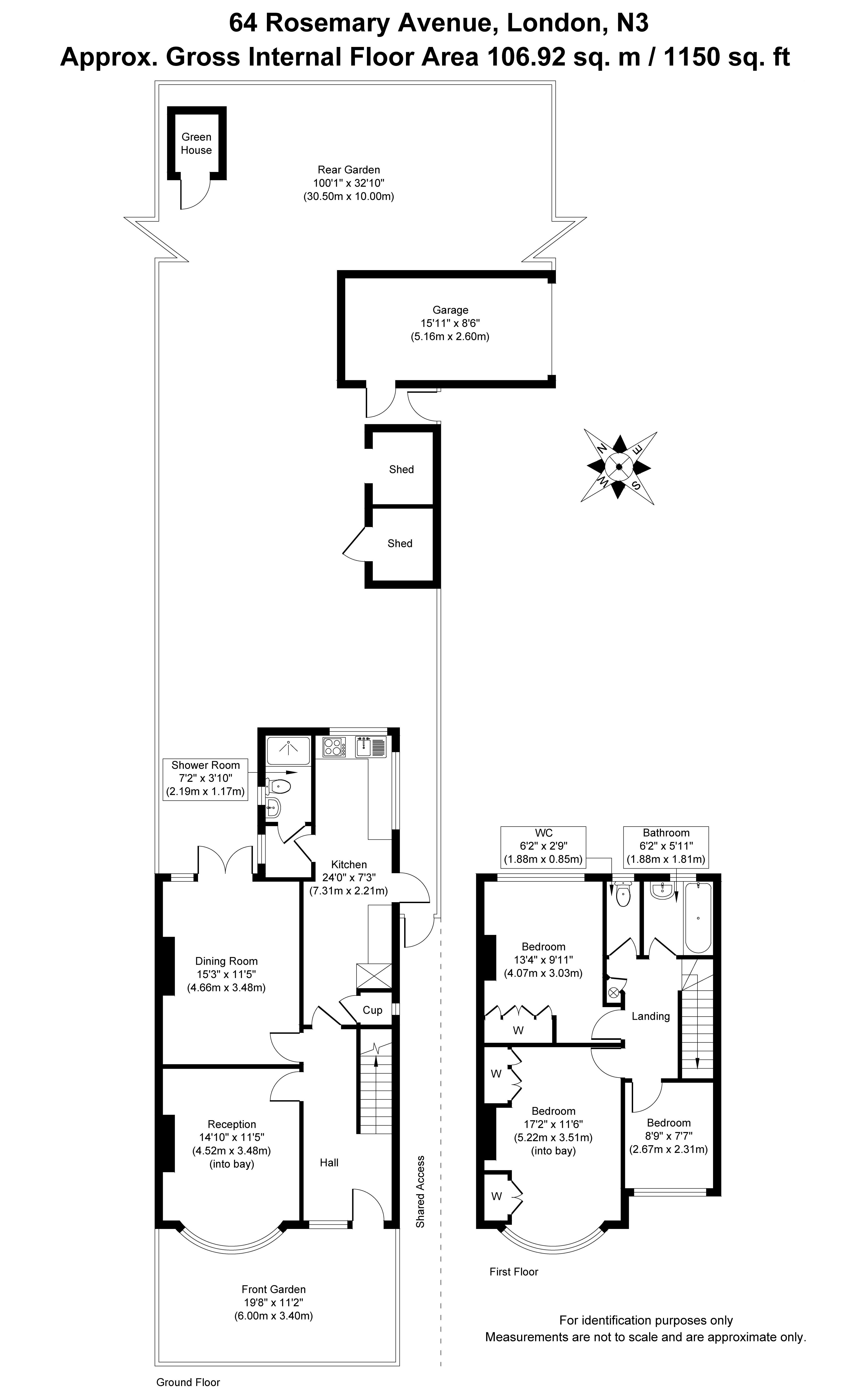
Extended THREE BEDROOM end terrace house located within half a mile of Finchley Central underground station & shops. Buses and schools (incl. Akiva, St Theresa’s and Manorside are also nearby. The property would benefit from modernisation, offers scope for further ground floor extension and loft conversion. Chain free. * THREE BEDROOMS * TWO RECEPTION ROOMS * 24’ (7m) KITCHEN / DINER * GROUND FLOOR WC / SHOWER * BATHROOM AND SEPARATE WC * GAS CENTRAL HEATING * SOME DOUBLE GLAZING * DETACHED GARAGE VIA SERVICE ROAD * SCOPE FOR FURTHER GROUND FLOOR EXTENSION / LOFT CONVERSION (stpp) * LARGE REAR GARDEN 100’ X 32’ (30M X 9.75M) MAX. * FRONT GARDEN * CHAIN FREE Front door with original stained glass side panel. ENTRANCE HALL Original plate rail. Understairs cupboards. FRONT RECEPTION 14’10 x 11’5 (4.52m x 3.48m). Into bay window. Original Fireplace surround, ceiling cornice. REAR RECEPTION 15'3 x 11'5 (4.66m x 3.48m). French doors & windows to garden / patio. Fireplace. Ceiling cornice. KITCHEN / DINER 24'0 x 7'3 (7.31m x 2.21m). Fitted base and eye level units Stainless steel sink unit, Larder. Window to rear. Plumbed for washing machine. Door to garden. Door to lobby. Window to side. Door to: GROUND FLOOR WC / SHOWER Tiled shower area, wash basin, low flush WC. STAIRS TO FIRST FLOOR LANDING BEDROOM ONE 17'2 x 11’6 (5.22m x 3.51m). Into bay window to front. BEDROOM TWO 13'4 x 9’11 (4.07m x 3.03m). Window to rear. Fitted cupboards. BEDROOM THREE 8’9 x 7'7 (2.67m x 2.31m). Window to front. BATHROOM Panelled bath. Wash basin. Access hatch to LOFT – Potential for loft conversion subject to usual consents. SEPARATE WC EXTERIOR REAR GARDEN Approximately 100' x 32’ (30m x 9.75m) MAX.Narrowing to approx 22 (6m). Lawn with flower beds, patio, shed. Gated side access. GARAGE Detached, at rear garden with vehicular access via service road. FRONT GARDEN Approx. 19’8 x 11’2 (6m x 3.4m). COUNCIL TAX Band E, Barnet. EPC Band D. The agent has not tested any apparatus, equipment, fixtures, fittings or services, and so cannot verify they are in working order, or fit for their purpose, nor has the agent checked the legal documentation to verify the tenure of the property. The buyer is advised to obtain verification from their solicitor or surveyor. Photographs are for illustration only and may depict items which are not for sale or included in the sale of the property. All measurements quoted are approximate and their accuracy should not be relied upon. A prospective purchaser must check the availability of any property and make an appointment to view before embarking on any journey


Standout Features


Mortgage calculator

Mortgage calculator


Calculate Your Stamp Duty
£
Results
Stamp Duty To Pay:
Effective Rate:
Tax Band % Taxable Sum Tax

ROSEMARY AVENUE, FINCHLEY, N3

Other properties that may interest you

Struggling to find a property? Get in touch and we’ll help you find your ideal property.

ETCHINGHAM PARK ROAD, FINCHLEY, N3
For Sale

ETCHINGHAM PARK ROAD, FINCHLEY, N3

1 Bed Property For Sale
Guide price Offers in excess of £325,000
DOLLIS ROAD, FINCHLEY, N3
For Sale

DOLLIS ROAD, FINCHLEY, N3

2 Bed Property For Sale
Guide price Offers in excess of £400,000
SQUIRES LANE, FINCHLEY, N3
For Sale

SQUIRES LANE, FINCHLEY, N3

3 Bed Property For Sale
Guide price £600,000

Ready to Sell or Let your property?

Are you ready to sell or let your property? We understand that putting your property on the market can be a big decision. That’s why we’re here to help you every step of the way.